https://www.tradgardsteknik.se/logotyper/bill_logo_1.png
Patric Torle
info@tradgardsteknik.se
0431-222 90
0431-222 70
Trädgårdsteknik AB tillverkar och bygger växthus, specialväxthus, orangerier, belysning Garden för hela Skandinavien.
Helsingborgsvägen 578
ÄNGELHOLM
262 96
SWEDEN

Pump centrifugalpump vertikal flerstegs Grundfos CRN 32-6, 11kW 30m³/h 90,4m  




Pump centrifugalpump  vertikal flerstegs Grundfos CRN 32-6, 11kW 30m³/h 90,4m
Vertikal, normalsugande, flerstegs, in-line centrifugalpump för installation i rörledning eller montering på fundament.

Funktioner
  • Pumphjul, mellankammare och yttre mantel är tillverkade av Rostfritt stål DIN W.-Nr. 1,4401.
  • Topp- och fotstycke är tillverkade av Rostfritt stål DIN W.-Nr. 1,4408.
  • Axeltätningens monteringslängd enligt DIN 24960.
  • Kraftöverföring via klämkoppling av gjutjärn.
  • Röranslutning via DIN flänsar/kopplingar.
  • Motorn är av typen 3-fas normmotor.

Vätska
Vätska Vatten
Vätsketemperatur område -40 till 120°C
Vätsketemp 20°C
Densitet 998,2 kg/m³

Teknisk data
Hastighets

2924 rpm

Resulterande flöde 30 m³/h
 Resulterande lyfthöjd för pumpen 90,4 m
Pumphjul 6
Kod för axeltätning. 1: Typ 2. Rot.
tätningsdel 3: Stat. plats 4: Sek. tätning:
HQQE
Kurvtolerans ISO9906:2012 3B
Steg 6
Pumpversion A
Modell A

Material
Pumphus Rostfritt stål DIN W.-Nr. 1,4408
AISI 316 LN
Pumphjul Rostfritt stål
DIN W.-Nr. 1,4401 AISI 316

Installation
 Max. omgivningstemperatur 60°C
 Max. tryck vid angiven temp 16 bar / 120°C
16 bar / -40°C
Flänsstandard DIN
Anslutningskod F
Röranslutning DN 65
Trycksteg PN 16 / PN 25 / PN 40
Motorflänsstorlek FF300

Elektriskdata
Motortyp 160MB
IE Efficiency class IE3
Antal Poler 2
Effektförbrukning - P2 11 kW
Effektbehov (P2) för pump 11 kW
Nätfrekvens 50 Hz
Märkspänning 3 x 380-415 D/660-690 Y V
Nominell ström 20,8-19,8/
12,0-11,8 A
Startström 660-780 %
Cos phi - verkningsgrad 0,88-0,84
Varvtal 2940-2950 rpm
Efficiency IE3 91,2%
Motorns verkningsgrad vid full belastning 91,2%
Motorverkningsgrad vid 3/4 last 91,8%
Motorverkningsgrad vid 1/2 last 91,3%
Kapslingsklass (EC 34-5) 55 Dust/Jetting
Isolationsklass (EC 85) F
Motorskydd PTC
Motornr 85U17524

Övriga
Märka Grundfos Blueflux
Minsta effektivitetsindex
, MEI ≥
0,7
Nettovikt 163 kg
Bruttovikt 196 kg
Leveransvolym 0,495m³


Prestanda kurvor

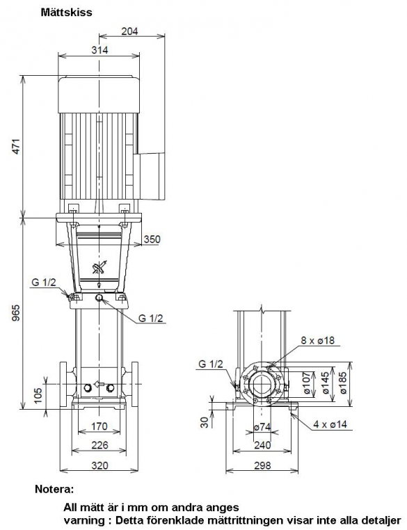
» Ritning med mått beskrivning

» Kopplings schema

  • Pump centrifugalpump  vertikal flerstegs Grundfos CRN 32-6, 11kW 30m³/h 90,4m
    Art. nr.
    GRU96122361
    Pump centrifugalpump vertikal flerstegs Grundfos CRN 32-6, 11kW 30m³/h 90,4m
För mer information kontakta oss på
0431-222 90


TRÄDGÅRDSTEKNIK AB
Helsingborgsv., Varalöv
262 96 ÄNGELHOLM
Telefon:
0431-222 90
Org Nr:
556409-6120
Webbadress:
www.tradgardsteknik.se
E-post:
info@tradgardsteknik.se